Explore
AI Agent
AI Learning
Find Jobs
Find Designers
Find Assets
Log inSign up
1.3.70
AllAssetsRetouchingPictureCollectionsDesigners版权图库
课程
以图搜图
余温啊
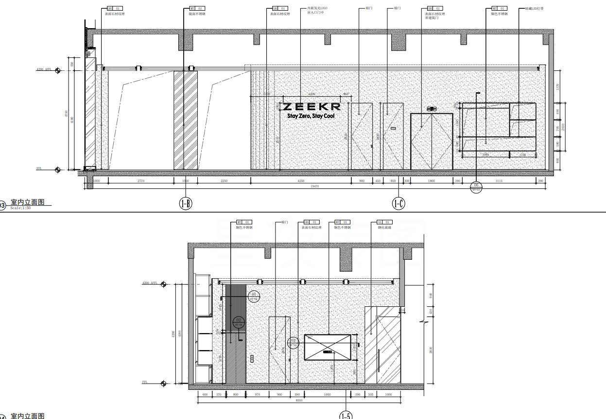
极氪中心银泰城店装饰施工图
Collect
万万呀
施工图设计
Collect
余温啊
极氪中心银泰城店装饰施工图
Collect
宋芸溪
极氪中心银泰城店装饰施工图
Collect
余温啊
极氪中心银泰城店装饰施工图
Collect
宋芸溪
极氪中心银泰城店装饰施工图
Collect
Z18672383
下沙维抢修中心过街楼三楼施工图
Collect
w18133601802
会所
Collect
施工图深化
续上次外立面施工图一层
Collect
w18133601802
会所
Collect
竹溪设计
私人会所施工图
Collect
品牌设计Calvin
施工图绘制|消防图绘制|电路图绘制
Collect
天斐效果图刘杉杉
长沙李工吉首售楼部施工图
Collect
施工图深化
续上次外立面施工图一层
Collect
宋芸溪
极氪中心银泰城店装饰施工图
Collect
袁小丹
邦舍案例
Collect
w18133601802
会所
Collect
袁小丹
邦舍案例
Collect
余温啊
极氪中心银泰城店装饰施工图
Collect
袁小丹
邦舍案例
Collect
玲18019926177
5G科技展厅-效果图+施工图
Collect
Z18672383
下沙维抢修中心过街楼三楼施工图
Collect
袁小丹
#SU建模#施工图#
Collect
叶雨小可爱
酒店立面+节点
Collect
w18133601802
会所
Collect
Z星夜果果
施工图||家装
Collect
袁小丹
邦舍案例
Collect
施工图深化
续上次外立面施工图一层
Collect
w18133601802
会所
Collect
语言
资质
举报中心
关于我们
侵权申诉企业服务帮助中心
京ICP备11017824号-4京ICP证130164号
Copyright © 2006-2025 ZCOOL站酷